Zip06 – Slate Upper School’s Celebrates Groundbreaking

Check out the article here. On Tuesday, April 11, at 9:15 a.m., local officials from the Town of…

Roìa Restaurant was awarded an AIA Connecticut 2020 Elizabeth Mills Brown Award of Excellence! 

We won the 2020 AIA CT Elizabeth Mills Brown Award of Excellence! Connecticut has a remarkable built heritage…

What is Modern Vernacular Architecture?

Merriam-Webster defines the word “vernacular” as “using a language or dialect native to a region or country rather…

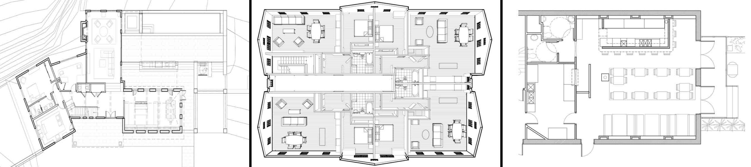
AN ARCHITECT’S PROCESS

Projects on the drawing board at different stages: a conceptual sketch, a framing sketch, a landscape plan, 2…

THE SKINNY ON BOSTON’S NARROWEST HOUSE

The narrowest rowhouse in Boston was built in 1874 allegedly as a ‘spite house’. According to local legend,…